
5
BUILT-IN INSTALLATION SPECIFICATIONS
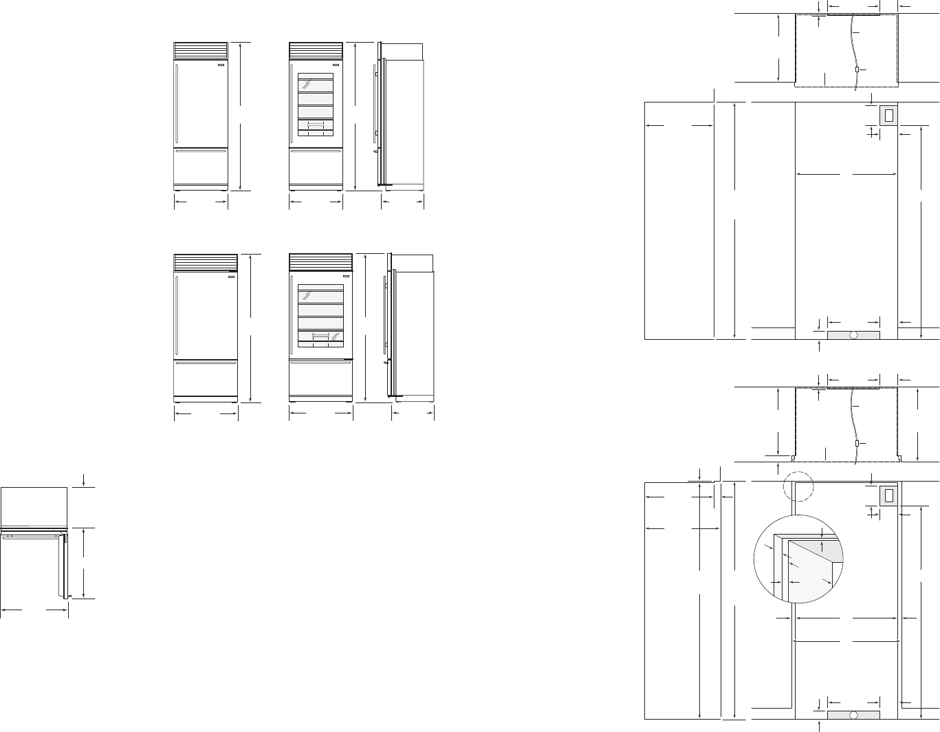
DOOR CLEARANCE
Over-and-Under Models
A
Model ICBBI-30U 794 mm
806 mm Flush Inset
Model ICBBI-30UG 794 mm
806 mm Flush Inset
Model ICBBI-36U 946 mm
959 mm Flush Inset
Model ICBBI-36UG 946 mm
959 mm Flush Inset
Door clearance is based on stainless
steel door and handle dimensions.
OVERALL DIMENSIO NS
Over-and-Under Models
Model ICBBI-30U
WH D
762 mm 2138 mm 610 mm
Model ICBBI-30UG
with Glass Door
WH D
762 mm 2138 mm 610 mm
Model ICBBI-36U
WH D
914 mm 2138 mm 610 mm
Model ICBBI-36UG
with Glass Door
W
HD
914 mm 2138 mm 610 mm
U
nit dimensions may vary by ± 3 mm.
606 mm
BEHIND
FRAME
WIDTH
OF UNIT
A
M
odel ICBBI-30U
Model ICBBI-36U
M
odel ICBBI-30UG
Model ICBBI-36UG
Stainless steel design shown.
INSTALLAT ION SPE CIFICATIONS
Over-and-Under Models —
Overlay (non-flush inset) and Stainless Steel
A
Model ICBBI-30U 749 mm
M
odel ICBBI-30UG 749 mm
M
odel ICBBI-36U 902 mm
Model ICBBI-36UG 902 mm
Dimensions are for finished rough openings.
INSTALLAT ION SPE CIFICATIONS
Over-and-Under Models —
Flush Inset Application
AB
Model ICBBI-30U 749 mm 813 mm
Model ICBBI-30UG 749 mm 813 mm
Model ICBBI-36U 902 mm 965 mm
Model ICBBI-36UG 902 mm 965 mm
Dimensions are for finished rough openings.
1918 mm
178
mm
152
mm
E
LOCAT E
ELECTRICAL
WITHIN
SHADED AREA
457 mm
W
LOCATE WATER SUPPLY
WITHIN SHADED AREA
152
mm
FRONT VIEWSIDE VIEW
2127 mm
OPENING
HEIGHT
A
OPENING WIDTH
76 mm
610 mm
OPENING
DEPTH
1
3 mm
457 mm
*
152
m
m
610 mm
OPENING
DEPTH
SHUT-OFF
VALVE
OUTLINE OF
OVERLAY
OR STAINLESS
STEEL MODEL
TOP VIEW
* ANTI-TIP
BRACKET MUST NOT
INTERFERE
WITH WATER LINE.
REFER TO INSTALLATION
I
NSTRUCTIONS FOR COMPLETE
DETAILS.
EXTEND WATER LINE APPROX
914 mm FROM BACK WALL.
WATER LINE
1918 mm
178
mm
152
mm
E
LOCATE
ELECTRICAL
WITHIN
SHADED AREA
13 mm
457 mm
*
152
mm
610 mm
OPENING
DEPTH
665 mm
FLUSH INSET
D
EPTH
SHUT-OFF
VALVE
OUTLINE
OF FLUSH INSET
APPLICATION WITH
19 mm PANEL
457 mm
W
LOCATE WATER SUPPLY
WITHIN SHADED AREA
152
mm
FRONT VIEWSIDE VIEW
TOP VIEW
2127 mm
OPENING
HEIGHT
2134
mm
FLUSH
INSET
HEIGHT
6 mm
56 mm**
76 mm
A
OPENING WIDTH
B
FLUSH INSET WIDTH
32
mm
32
mm
56
mm
**
610 mm
OPENING
DEPTH
665 mm
FLUSH INSET
DEPTH
* ANTI-TIP
BRACKET MUST NOT
I
NTERFERE
W
ITH WATER LINE.
REFER TO INSTALLATION
INSTRUCTIONS FOR COMPLETE
D
ETAILS.
**ASSUMES 19 mm PANEL
THICKNESS.
EXTEND WATER LINE APPROX
914 mm FROM BACK WALL.
WATER LINE
6
mm
32
mm
FLUSH INSET
DETAIL
56
mm
610 mm
OPENING
DEPTH
Comments to this Manuals