
4
BUILT-IN INSTALLATION SPECIFICATIONS
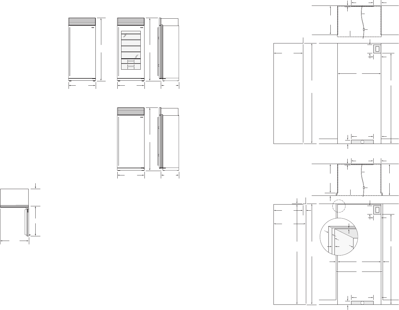
Stainless steel design shown.
DOOR CLEARANCE
All Refrigerator / All Freezer Models
A
Model ICBBI-36R 946 mm
959 mm Flush Inset
Model ICBBI-36RG 946 mm
959 mm Flush Inset
Model ICBBI-36F 946 mm
959 mm Flush Inset
Door clearance is based on stainless
steel door and handle dimensions.
OVERALL DIMENSIO NS
All Refrigerator / All Freezer Models
Model ICBBI-36R
All Refrigerator
WH D
914 mm 2138 mm 610 mm
Model ICBBI-36RG
A
ll Refrigerator with Glass Door
WH D
9
14 mm 2138 mm 610 mm
Model ICBBI-36F
All Freezer
WH D
914 mm 2138 mm 610 mm
Unit dimensions may vary by ± 3 mm.
606 mm
BEHIND
FRAME
WIDTH
OF UNIT
A
M
odel ICBBI-36R Model ICBBI-36RG
Model ICBBI-36F
INSTALLAT ION SPE CIFICATIONS
All Refrigerator / All Freezer Models—
Overlay (non-flush inset) and Stainless Steel
A
Model ICBBI-36R 902 mm
M
odel ICBBI-36RG 902 mm
M
odel ICBBI-36F 902 mm
Dimensions are for finished rough openings.
Models ICBBI-36R and ICBBI-36RG will not
r
equire the water line connection.
INSTALLAT ION SPE CIFICATIONS
All Refrigerator / All Freezer Models—
Flush Inset Application
AB
Model ICBBI-36R 902 mm 965 mm
Model ICBBI-36RG 902 mm 965 mm
Model ICBBI-36F 902 mm 965 mm
Dimensions are for finished rough openings.
Models ICBBI-36R and ICBBI-36RG will not
require the water line connection.
1
918 mm
178
mm
1
52
mm
E
LOCATE
ELECTRICAL
WITHIN
SHADED AREA
457 mm
W
LOCATE WATER SUPPLY
WITHIN SHADED AREA
1
52
mm
FRONT VIEWSIDE VIEW
2127 mm
OPENING
HEIGHT
A
OPENING WIDTH
7
6 mm
610 mm
OPENING
DEPTH
13 mm
4
57 mm
*
152
mm
610 mm
OPENING
DEPTH
SHUT-OFF
VALVE
OUTLINE OF
OVERLAY
OR STAINLESS
STEEL MODEL
T
OP VIEW
* ANTI-TIP
BRACKET MUST NOT
INTERFERE
WITH WATER LINE.
R
EFER TO INSTALLATION
INSTRUCTIONS FOR COMPLETE
DETAILS.
EXTEND WATER LINE APPROX
914 mm FROM BACK WALL.
WATER LINE
1918 mm
178
mm
152
mm
E
LOCATE
ELECTRICAL
WITHIN
SHADED AREA
13 mm
457 mm
*
152
mm
610 mm
OPENING
DEPTH
665 mm
FLUSH INSET
DEPTH
SHUT-OFF
VALVE
OUTLINE
OF FLUSH INSET
APPLICATION WITH
19 mm PANEL
457 mm
W
LOCATE WATER SUPPLY
WITHIN SHADED AREA
152
mm
FRONT VIEWSIDE VIEW
TOP VIEW
2127 mm
OPENING
HEIGHT
2134
mm
FLUSH
INSET
HEIGHT
6 mm
56 mm**
76 mm
A
OPENING WIDTH
B
FLUSH INSET WIDTH
32
mm
32
mm
56
mm
**
610 mm
OPENING
DEPTH
665 mm
FLUSH INSET
DEPTH
*
ANTI-TIP
B
RACKET MUST NOT
INTERFERE
WITH WATER LINE.
REFER TO INSTALLATION
I
NSTRUCTIONS FOR COMPLETE
DETAILS.
**ASSUMES 19 mm PANEL
THICKNESS.
EXTEND WATER LINE APPROX
914 mm FROM BACK WALL.
WATER LINE
6
mm
32
mm
FLUSH INSET
DETAIL
56
mm
610 mm
OPENING
DEPTH
Comments to this Manuals